Download Free Templates http://bigtheme.net/ Websites Templates

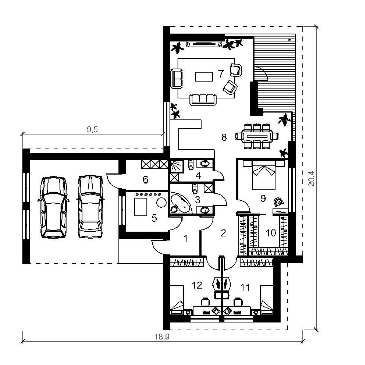
Projet de la maison de plain-pied Agnete.

Espace habitable 141 m2
Longueur 20,4 m
Largeur 18,9 m
Nombre des chambres 4
Garage Oui

 

DÉMARRER UNE CONVERSATION

Please type your full name.
Invalid email address.
Invalid Input
Invalid Input
Invalid Input

Plus des informations sur le téléphone:

+371-670-16-500

Vous pouvez laisser votre spécification technique pour la construction d'une maison à nos ingénieurs ou envoyer la conception de maison, sur la base de laquelle nous allons faire une estimation préliminaire: info@grata-eco-house.com